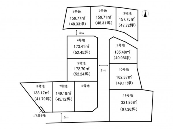
土地 出雲市上塩冶町上塩冶町3号地
所在地
出雲市上塩冶町上塩冶町3号地
1,562万円
74.34坪
・ディスカウントドラッグコスモス塩冶東店まで徒歩8分(587m)
・セブンイレブン出雲市駅南店まで徒歩7分(539m)
・マックスバリュ塩冶店まで徒歩10分(785m)
・ねむの木保育園まで徒歩7分(509m)
・えんや保育園まで徒歩10分(796m)
月々の
支払例
支払例
万円
年
%
円
※弊社提携銀行※審査により金利は変わる可能性があります。/借入金1,562万円、返済期間40年、金利1.000%(元利均等返済)の場合
※審査により金利は変わる可能性があります。
物件概要
- 交通
-
山陰線 出雲市駅 まで 徒歩12分
一畑松江線 電鉄出雲市駅 まで 徒歩10分
- 接道状況
- 南側6.0m
- 土地面積
- 245.76㎡ (74.34坪)
- 建ぺい率
- 60%
- 容積率
- 200%
- 土地権利
- セットバック
- 無し
- 小学校区
- 塩冶 (1939m)
- 中学校区
- 第二 (1951m)
- 私道負担
- 建築条件
- なし
- 地目
- 宅地
- 現況
- 引渡時期
- 上水道
- 公共
- 下水道
- 公共
- ガス
- 都市計画
- 用途地域
- 1種住居
- 設備・条件
- 備考
-
諸経費
上水道加入金:122,000円
下水道受益者負担金:400円/㎡
ゴミ箱負担金:30,000円
固定資産税:引渡し日による - 取引態様
- 仲介


