新築一戸建て 出雲市大津町大津町南1号地
所在地
出雲市大津町大津町南1号地
4,100万円
31.21坪
・ファミリーマートJAいずも大津店まで徒歩5分(410m)
・ディスカウントドラッグコスモス大津新崎店まで徒歩17分(1350m)
・すぎの子保育園まで徒歩3分(212m)
・たちばな保育園まで徒歩10分(764m)
・出雲市立大津幼稚園まで徒歩10分(740m)
月々の
支払例
支払例
万円
年
%
円
※弊社提携銀行※審査により金利は変わる可能性があります。/借入金4,100万円、返済期間40年、金利1.000%(元利均等返済)の場合
※審査により金利は変わる可能性があります。
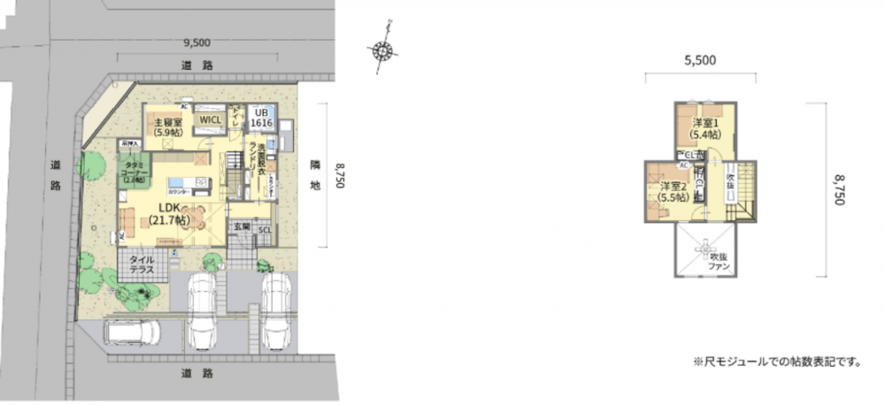
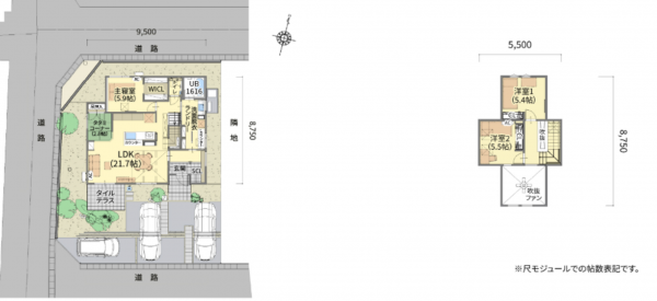
物件概要
- 交通
- 土地面積
- 205.85㎡ (62.26坪)
- 建物面積
- 103.18㎡ (31.21坪)
- 築年数
- 2025年 (令和7)
- 建ぺい率
- 容積率
- 土地権利
- 構造および階数
- 小学校区
- 大津 (1100m)
- 中学校区
- 第一 (900m)
- 私道負担
- 地目
- 現況
- 引渡時期
- 駐車場
- 上水道
- 下水道
- ガス
- 都市計画
- 用途地域
- 設備・条件
- 備考
- 取引態様
- 仲介


